Timeless Interior Design

At Sophie Paterson Interiors,  we believe that timeless design is the cornerstone of what we do. We believe that every home is unique and should reflect the people who live in it, and it is our mission to create spaces that our clients will love for years, not just until the next trend comes along.

WHAT IS TIMELESS INTERIOR DESIGN?

Timeless interior design is all about crafting interiors that can evolve with the addition of accessories or accents, without requiring a full overhaul every season. It’s about creating spaces that remain beautiful and functional for decades, regardless of changing trends. 

Reflecting on the 16 years we’ve spent designing homes, it’s incredibly rewarding when clients tell me that our projects still feel fresh, even if they were completed 10 years ago. In fact, many of our projects look just as current today as they did when they were first designed – which is testament to the timelessness we aim for.  

5 things you need to know before starting your interior design journey

Starting your interior design project can feel overwhelming. With so many decisions to make, where do you even begin? Below, I’ve outlined five key steps to help guide you through the process and ensure you start off on the right foot.

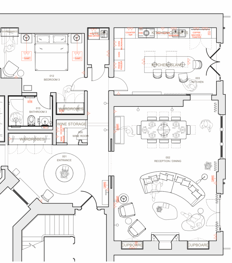
1. START WITH THE LAYOUT

Before diving into aesthetic choices, it’s essential to establish the layout of your space. This is the foundation upon which everything else will be built. Whether your property is large or small, optimising the layout ensures that every square inch is used efficiently and that the space flows naturally. Consider potential structural changes and think about the placement of electrical outlets, lighting, and furniture. Don’t forget about natural light – where does it come in and how can you maximise it? The key is to avoid trend-led decisions and opt for a Timeless Interior that will stand the test of time. 

2. DEFINE THE PURPOSE OF EACH SPACE

Each area of your home should have a clear function. Your living room may be designed for relaxation and entertainment, while your kitchen could be a hub for cooking and socialising. It’s important to think about how these spaces will evolve over time. For example, a dining room might be next to the kitchen for convenience, but an office or study should ideally be located in a quieter, more private area. The goal is to ensure the home works for you and your needs.

3. ESTABLISH A REALISTIC BUDGET

Understanding your budget is crucial before embarking on a design journey. Do your budgets and timelines align with your vision? It’s always tempting to overspend, but a realistic budget helps you make informed decisions. Think about where you spend most of your time. If you have a limited budget, it may make sense to focus your investment on areas you use frequently, while opting for more budget-friendly solutions for less-used spaces. If your budget allows, investing in high-quality materials and finishes can elevate the entire look of your home.

A key element that is often overlooked when planning a budget is the impact accessories can have on the overall look and feel of a home. The right accessories can completely transform a room, adding personality and style. We highly recommend setting aside a portion of your budget specifically for these finishing touches, as they can make a significant difference in the final aesthetic.

4. SEEK INSPIRATION

Inspiration can come from anywhere, nature, travel, Pinterest, Instagram, or even art and architecture. There is no right or wrong way to find inspiration, but having a clear reference point will help you make confident decisions, ultimately saving both time and money. Whether it’s a colour palette, a texture, or a design style, gather elements that resonate with you.

5. CREATE MOODBOARDS

Mood boards are a fantastic tool to visualise your ideas and bring the design to life. Whether you use tools like InDesign or simply Microsoft PowerPoint, creating a mood board allows you to experiment with different styles, colour schemes, and materials.

This process helps you see how the various elements fit together, bringing clarity and direction to your project. It also gives you the chance to refine your choices before moving forward, making the entire design process smoother and more enjoyable.

Check out my “A day in the life of an interior designer” blog for more information and practical tips.

Furniture Choices: Combining Comfort, Quality, and Durability

When selecting furniture for a timeless design, comfort is key. But it’s equally important to choose pieces that are durable and of high quality. Antique furniture often fits the bill perfectly, offering both charm and longevity. Mixing old with new can create a dynamic, engaging aesthetic.

When working on projects, we are often faced with various challenges, ranging from air conditioning integration or partitioning rooms to create en-suite bathrooms. It requires creativity and innovation, as we balance preservation with practicality.

For example, in one of our recent Grade Listed London projects, we integrated an antique chest of drawers, which had been converted into an air conditioning unit. We ordered this antique furniture piece and had it sent to one of our cabinet makers who reinforced the insides and hollowed it out and ensured we could mechanically fix the piece to the wall.  We then had a new marble top with air conditioning slots integrated into it for a beautiful solution to integrated air conditioning. This solution not only preserved the antique piece but also incorporated modern amenities without compromising the design integrity.

Timeless colour palettes: warm neutrals and earthy tones

A common question I get asked is about timeless colour palettes. My go-to recommendation is to opt for warm neutrals and earthy tones. I believe that if a colour works in nature, it will work in your home. Some of my favourite paints for creating timeless spaces include:

  • Dulux Khaki Mist
  • Farrow & Ball School House White
  • Zoffany Half Harbour Grey

Above: Dulux Khaki Mist seen in a children’s bedroom.

A top tip when testing paint colours: don’t just paint a sample on one wall. Test colours on all four walls to see how they react to different lighting conditions. You’d be surprised at how much a colour can change depending on the light!

Mood boards or look and feel images are great for getting all the colour palettes together and working out what you want to proceed with.

Ready to Begin Your Interior Design Journey?

If you’re about to start your own interior design project, I hope these tips have sparked the inspiration and confidence you need to begin with clarity and purpose.

For those looking to dive deeper into the world of interior design, I invite you to explore my flagship course, “Interior Design Mastery – From Basics to Brilliance”. This course will empower you to approach design with confidence and creativity, helping you bring your vision to life in your own unique way.

For more expert advice and design inspiration, be sure to follow me on Instagram and YouTube  for the latest updates and behind-the-scenes insights from Sophie Paterson Interiors.

The Key To
Seamless Design

Discover the Key Principles
for Running Your Design Project Professionally!

The Key To Seamless Design - Lead Magnet Cover

The Key To Seamless Design

Discover the Key Principles for
Running Your Design Project Professionally!

0